TOP > イベント > 同じ分譲地でおウチの“違い”を比べる「OPEN“3”HOUSE」(土浦市並木)

建売物件完全予約制

同じ分譲地でおウチの“違い”を比べる「OPEN“3”HOUSE」(土浦市並木)

日時
2025年11月10日(月)~11月30日(日) 10:00~17:00
場所
土浦市並木5丁目

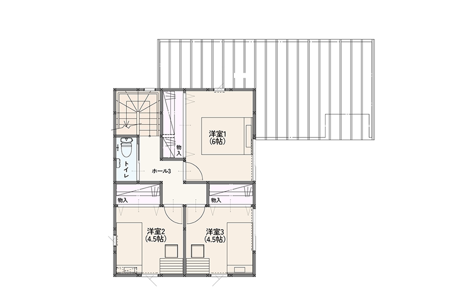
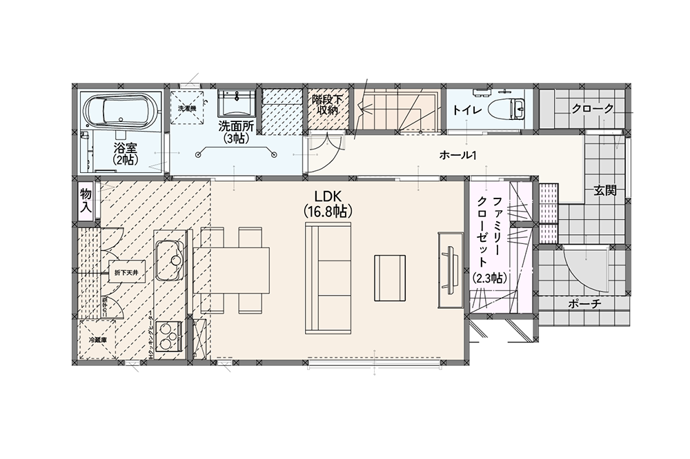
OVERVIEW物件概要

所在地
茨城県土浦市並木5丁目
交通
常磐線「土浦」駅まで約5,300m~約5,500m(車で14分)
販売価格
2,880万円~2,980万円
土地面積
173.8m²(52.57坪)~198.91㎡(60.17坪)
建物面積
99.16m²(29.98坪)~106.4m²(32.17坪)
学区
都和小学校/都和中学校
総区画数
60区画
販売棟数
3棟
地目
宅地
用途地域
第一種中高層住居専用地域
都市計画
市街化区域
道路
開発道路 約6m
建ぺい率
60%
容積率
200%
設備
公営水道・東京電力・公共下水・都市ガス
取引形態
売主
権利(土地権利)
所有権
施工・設計会社名
株式会社ノーブルホーム
その他特記事項
◎受益者負担金 300円/㎡
◎水道加入金
最終更新日
2025年11月18日

今なら完全予約制にてゆっくりと
3棟の暮らしを比較しながら見学できます!
小学校まで徒歩5分(約400m)・中学校まで徒歩7分(約550m)スーパーも徒歩5分(約400m)と暮らしやすいエリアです。好立地でお問い合わせの多い物件のため、ご興味のある方はお早目にお問い合わせください。

よくある質問

Q1. 小さい子がいるのですが、見学しても大丈夫でしょうか?

A1. ぜひお子様連れでお越しください。お困りごとがありましたら、スタッフまでお気軽にお声がけください!

Q2. 家づくりのことは何も決まっていなくて・・・。
ただ見たいだけなんですが、それでも見学してもいいですか?

A2. もちろん何も決まっていなくても大丈夫です!ぜひお気軽にお越しください!

Q3. しつこく営業されたら困るのですが・・・

A3. 無理な営業は致しませんので、ご安心ください!

建売物件完全予約制

同じ分譲地でおウチの“違い”を比べる「OPEN“3”HOUSE」(土浦市並木)

日時
2025年11月10日(月)~11月30日(日) 10:00~17:00
場所
土浦市並木5丁目